appartamento arredato in casa di campagna

L'APPARTAMENTO

L'unità abitativa è dotata di impianto di riscaldamento e condizionamento autonomi; ogni stanza è luminosa ed accogliente, le finiture sono tipiche della tradizione rurale, solai e soffitti godono ancora della travatura in legno, opportunamente coibentata e rinforzata.

PIANTA PIANO TERRA


- ingresso soggiorno


- cucina


- bagno con wc, lavello, lavatrice


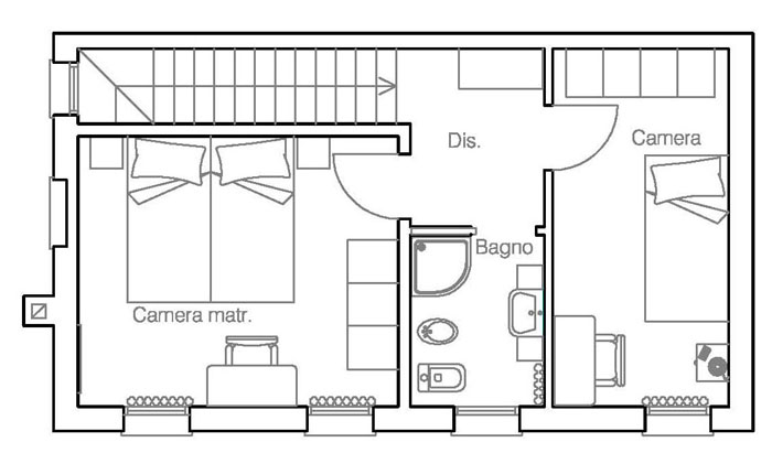
PIANTA PRIMO PIANO


- disimpegno


- camera doppia


- camera singola attrezzata anche per 2 posti letto


- bagno con doccia, lavello, bidet e wc


ATTREZZATURE INCLUSE:

- lavatrice, microonde, tostapane, bollitore elettrico
- ferro e asse da stiro, phon
- tv, dvd, cd stereo

clicca sulle miniature per vedere gli interni